Junior 427

Parametry projektu
Cena 3 129 199 Kč
Cena domu na klíč
Cena projektu:
17 440 Kč
Typ domu:
Samostatně stojící
Konstrukce:
Zděné domy
Obytných místností:
5 + kk
Nadzemních podlaží:
Patrové domy
Garáž:
Bez garáže
Garáž:
S garáží
Zastavěná plocha:
88.5 m2
Obestavěný prostor:
711.2 m3
Celková užitková plocha:
169.9 m2
Celková obytná plocha:
101.9 m2
Výška hřebene střechy:
7.560 m
Sklon střechy:
35º
Podlahová plocha:
169.9 m2
Místnosti
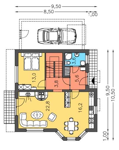
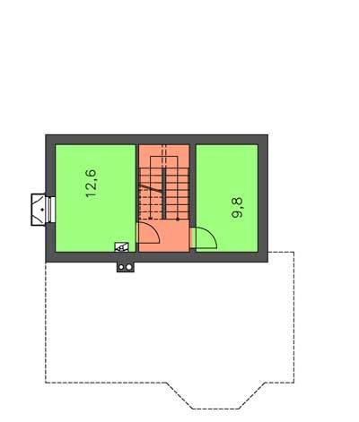
Přízemí:
70.60 m2
Poschodí:
75.80 m2
Suterén:
33.00 m2
Místnosti:
viz obr.
Popis projektu
JUNIOR 427 je dům menší kategorie • vhodný do dvojpodlažní okolní zástavby na rovinatý, případně mírně svahovitý pozemek • poschoďový rodinný dům s obytným podkrovím a částečným podsklepením • denní část na přízemí je z velké části tvořená velkoprostorem obývacího pokoje s krbem a jídelnou, které jsou opticky propojené s kuchyní • předností objektu je samostatný pokoj a WC se sprchovým koutem na přízemí • noční část se třemi pokoji je řešená v podkroví rodinného domu • svým dispozičním řešením nabízí tento rodinný dům prostory na pohodlné bydlení 6 členné rodiny • suterén je využívaný jako skladový prostor a nachází se v něm i technické zázemí rodinného domu • objekt je vzhledem na svoji šířku vhodný na středně široké stavební parcely • variabilitu objektu doplňuje možnost objednat projekt s alternativou přistavěné garáže, vyznačené čárkovaně (v tomto případě je potřebné vyznačit v objednávce název domu „JUNIOR 427 S GARÁŽÍ“)
Kontaktní informace
































