Bungalov 866

Parametry projektu
Cena 4 286 279 Kč
Cena domu na klíč
Cena projektu:
22 110 Kč
Typ domu:
Samostatně stojící
Konstrukce:
Zděné domy
Obytných místností:
4 + kk
Nadzemních podlaží:
Bungalovy
Garáž:
Bez garáže
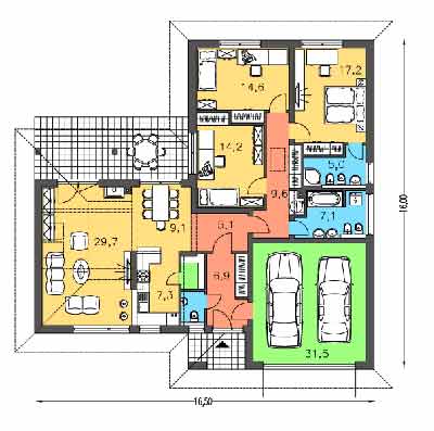
Místnosti
Obytné místnosti:
4
Zastavěná plocha:
211.5 m2
Obestavěný prostor:
1012.2 m3
Celková užitková plocha:
129.6 m2
Celková obytná plocha:
84.9 m2
Výška hřebene střechy:
5.590 m
Sklon střechy:
25º
Podlahová plocha:
129.6 m2
Popis projektu
Praktický 4-pokojový přízemní dům s moderním dispozičním řešením a dvojgaráží, určený i pro nejnáročnější klienty, vhodný pro 4-člennou domácnost, na převážně rovinatý terén, po menších úpravách vhodný i pro osobu se sníženou schopností pohybu, přehledné dělení na denní a noční část, noční část je situovaná do tiché zadní části, komfort rodičovské ložnice zvyšuje samostatná koupelna, hlavní obytný prostor tvoří obývací pokoj spojený s jídelnou a kuchyní, s přímým propojením na krytou terasu, nad obývacím pokojem je vynechaná stropní konstrukce, což společně s prosvětlením střešními okny tvoří dojem otevřeného velkoprostoru, část neobytného podkroví je využitelná na skladovací účely, velké plochy obytných místností, cihlový obklad fasády je možné nahradit omítkou nebo jiným typem obkladu.
Kontaktní informace































